Contact Vinidex Customer Service for availability of products on this page.
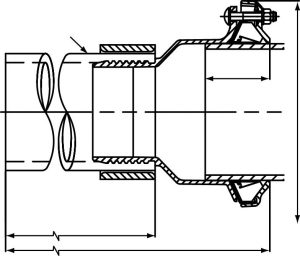
Viking Johnson UltraGrip Pecatadaptors are factory assembled with a PE tail, ready for jointing into a pipe network by butt fusion or using an electrofusion coupler. The PE connection is 500mm in length which will accommodate two electrofusion connections. Stainless Steel internal support liner is required when mechanical joints are used on PE pipes and thin walled PVC in order to prevent excessive pipe deformation which can occur.
